NATTERER ARCHITEKTEN
Projekte
Büro
Kontakt
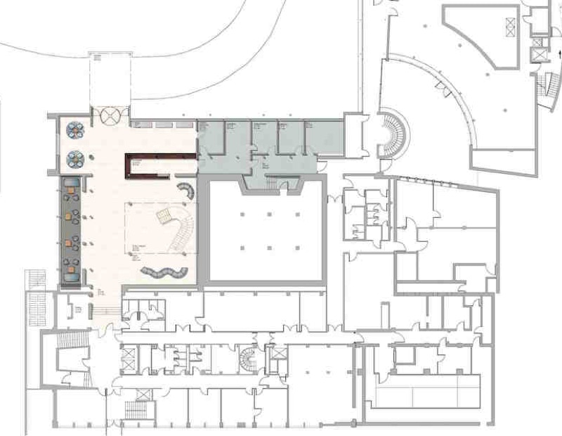
Konzernzentrale einer Bank in Wiesbaden
Eingeladener Wettbewerb für die Neugestaltung des Eingangs- und Konferenzbereichs